士別市大通東12建売住宅
販売価格:2,480万円(税込) 賃料:12万円
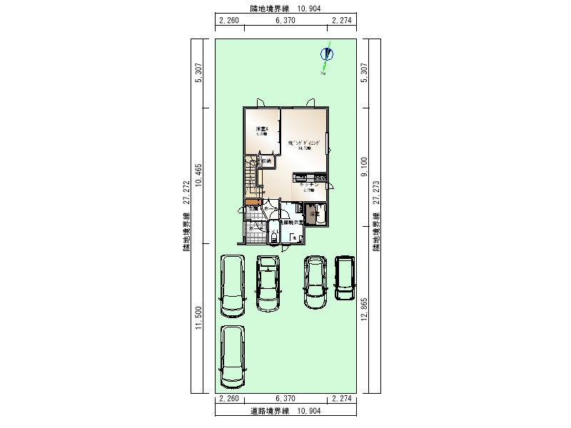
構造:木造 間取:4LDK 延床面積: 109.79㎡(約33.14坪) 土地面積:297.38㎡(約89.95坪)
※この物件は販売・賃貸両方に対応しております。
間取り図



室内・設備






























物件情報
| 建物名 | 士別市大通東12建売 | 駐車場 | 5台以上 |
| 所在地 | 士別市大通東12丁目1616-146 | 土地権利 | 所有権 |
| 販売価格 | 2,480万円(税込) | 用途地域 | 第1種中高層住居専用地域 |
| 媒介手数料 | 売主につき無料 | 建蔽・容積率 | 60%/200% |
| 延床面積 | 109.79㎡(約33.14坪) | 建築確認番号 | 第R4認建士別000004号 |
| 土地面積 | 297.38㎡(約89.95坪) | 地積状況 | 北向き間口 10.904m 前面道路幅 7.5m |
| 間取 | 4LDK | 環境 | 上下水道、灯油 |
| 建築年 | 2025年10月 | 学校 | 士別市立士別南小学校 士別市立士別南中学校 |
| 階層 | 2階建 | 現況・引渡し | 2025年10月完成 |
| 構造 | 木造亜鉛メッキ鋼板葺き | 取引態様 | 売主 |
| 備考 |
月々のお支払額 83,000円
※35年固定ローン、頭金ボーナス0円、金利2.00%でローンを組んだ場合
物件情報(賃貸)
| 賃料 | 12万円 | 総戸数 | 1 |
| 管理費・共益費 | -/- | その他費用 | 退去時清掃料、エアコン清掃料、火災・家財保険料(2年契約) ※汚れや臭いが酷い場合、追加清掃料が発生することがございます。 |
| 備考 | 入居時、家財保険に加入していただきます。弊社指定もしくは入居者様でかけていただいても結構です。その場合は証券の写しを弊社へご提出下さい。 ※入居時審査がございますが審査結果の異議申立や審査内容についてのお問い合わせは一切受付出来かねますのでご了承下さい。 |
設備・仕様
| バス・トイレ | ユニットバス(1坪サイズ/追い焚き付)、シャワー付き洗面化粧台、温水洗浄便座 |
| キッチン | システムキッチン、IHヒーター、食洗機 |
| 設備 | TVモニター付インターホン、シューズボックス、ストーブ、収納、ウォークインクローゼット、石油給湯機、室内洗濯機置場、トリプルガラスサッシ |
物件のポイント
- スーパー、コンビニ1km圏内で買い物ラクラク
- 追焚付ユニットバス
- 断熱性能の高いトリプル(三重)ガラスサッシ採用
- LDK18帖以上
- 全居室6帖以上
- 家事をサポートする食洗機付
- 収納力抜群、カスタム自由なウォークインクローゼットあり
- 清潔感があふれる白木目のフロアー
- 明るい二面採光のリビング
- 5台以上駐車可能な広々駐車スペース
周辺情報
交通
- 士別大通6丁目バス停 約700m(徒歩9分)
- 士別駅 約850m(徒歩11分)
学校
- 士別市立士別南小学校 約500m(徒歩7分)
- 士別市立士別南中学校 約1.0km(徒歩13分)
その他施設
- ローソン士別南町店 約400m(徒歩5分)
- 西條 士別店 約500m(徒歩7分)
- セイコーマート士別南大通り店 約550m(徒歩7分)
- スーパーアークス士別店 約750m(徒歩10分)
- DZマート 士別店 約900m(徒歩12分)
- セブンイレブン 士別東6条店 約1.0km(徒歩13分)

